목차
이제는 정리된 도면을 활용해서 스케치업의 명령어들로 3d공간을 만들어 볼 것입니다.
우선 이번 챕터에서는 1층 부분을 만들어 봅시다.
지난 챕터 02까지 진행했던 파일 첨부합니다.
Chapter 01. 1층 외벽바닥 만들기
화면 오른쪽 트레이 부분에서
1. 장면(view) 항목을 클릭합니다. 장면 항목이 열릴 것입니다.
2. 표준보기(Standard views)에서 평면도(맨 위)를 선택해 준다. 전체 화면이 맨 위에서 보는 것처럼 보일 것입니다.
※ 카메라 부분에서 원근감모드로 되면 투시가 생기지만 병렬투영모드로 바꾸면 투시가 없이 평면도처럼 보이게 됩니다.

※ 이번 챕터에서는 1층 부분만 만들 것이라 '1층_평면도'만 남기고 나머지 태그는 꺼두는 것이 편할 것입니다.

3. 1층 외벽을 그리기 위해서 '1층_평면도'를 움직이지 못하게 잠금을 시켜야 합니다.
Space Bar를 눌러주고 1층_평면도를 선택합니다.
4. 마우스를 우 클릭하고 쿼드 명령어들이 생기면
5. 잠금(Lock)을 선택합니다. 도면이 빨간색으로 바뀔 것입니다. 잠김 상태라는 표시입니다.

6. 휠 마우스 버튼을 돌려서 화면을 확대하고
7. 휠 마우스 버튼을 누른 상태에서 Shift키를 추가로 눌러주면 화면을 이동할 수 있는데 아래 그림처럼 화면을 이동하여 조정을 해줍니다.

8. 도구 세트에서 선(단축키 "L")을 눌러주고 아래그림을 참고로 9~11번 단계까지 벽체 외곽을 따라 그려줍니다. 이때 창문이나 문 등은 무시하고 그려줍니다.(휠 마우스 버튼 + Shift버튼을 눌러 화면을 이동하면서 벽체선을 따라 그려주면 편할 것입니다.)

※ 아래 그림처럼 화살표 방향으로 라인을 그려줍니다.
단, 한 번에 연결해서 그릴 필요는 없습니다. 선을 끊어서 그려도 됩니다.

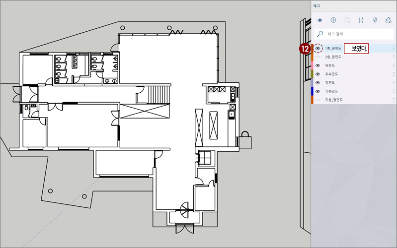
12. (아래 그림을 참고) 태그 부분에서 "1층_평면도" 태그를 보기(눈 모양 아이콘)를 켰다.(보였다.)

13. (아래 그림을 참고) 태그 부분에서 "1층_평면도" 태그를 안 보이기(눈 모양 아이콘)를 껐다.(안보였다.)

반복해 보면서 도면이 숨겨지면 방금 그린 외벽만을 확인할 수 있습니다.
만약 외벽면의 선을 잘 못 그렸다면 이 과정을 응용하여 잘 못 그린 선을 지우고 다시 선을 수정하여 그리면 될 것입니다.
새로운 물체가 만들어졌습니다. 우리는 이 물체를 다른 물체들과 구분하기 위해 태그 이름을 지어줄 것입니다.
14. 태그 창을 열고
15. 태그 창에서 "+"를 누릅니다.
16. 새 태그 이름 만들기에서 이름을 '1층_외벽'이라고 입력합니다.

17. Space Bar(선택 단축키)를 눌러주고 외벽면을 더블 클릭합니다.
18. 마우스 우 클릭하여 쿼드가 나오면
19. 개체 정보(Entity Info)를 선택합니다.
20. 화면 오른쪽 상단에 요소 정보 트레이에서 현재 태그를 '1층_외벽' 태그로 지정해 줍니다.

Chapter 02. 1층 외벽 바닥과 벽체 부분을 분리하기
방금 만든 물체는 사실 벽체에 바닥을 포함해서 만들었습니다.
그래서 다음과정에서 바닥과 벽체 부분을 분리하는 작업을 할 것입니다.
작업개념은 바닥 부분을 그린 후 지워서 남는 부분이 벽체가 되는 개념입니다.
그렇지만 바닥 부분을 지우기에는 아깝기 때문에 다시 사용할 수 있도록 따로 복사해서 나중에 바닥으로 사용하면 좋을 것 같습니다.
'1층_외벽'부분에 바닥선을 추가로 그려 넣기 위해서 태그가 '1층_외벽'태그로 지정되어 있는지 확인 후 작업을 하길 바랍니다. 가끔 다른 태그에 그려서 힘드게 선택해서 태그를 바꿔야 하는 불편함이 생길 수 있기 때문입니다.
1. '1층_외벽' 태그로 지정해 줍니다.
2. 단축키"R"(Rectangle사각형 그리기)을 눌러주고
3. 아래 그림을 참조로 내부바닥모습 대로 드래그를 해서 사각형을 그려줍니다. (창문, 문 등은 무시하고 그립니다.)

4. 바닥면을 사각형으로 쪼개고 겹쳐서 그렸지만 잘 못된 부분도 있을 겁니다. 하지만 잘 안 보일 것입니다.
태그 창에서 '1층_평면도' 태그를 껐다 꼈다 하면서 내부 바닥면 사각형을 확인할 수 있습니다.
추가할 부분과 수정할 부분을 확인 후 고쳐줍니다.

5. 내부 바닥면용으로 그린 사각형 부분이 겹쳐진 선들이 보일 것입니다.
지우개로 겹친 부분을 클릭하면서 지워도 되고, 지워야 할 선 부분을 직접 선택한 후
delete를 눌러서 지워도 됩니다.
직접 선택하는 방법에는 Ctrl이나 Shift를 누르고 여러 개를 선택한 후 한 번에 지울 수도 있습니다.

Chapter 03. 1층 외벽 벽체 세우기
1. 선택(Space Bar)을 눌러주고 내부 바닥이 되는 면을 Shfit를 누른 채 나머지 바닥면을 모두 선택해 줍니다.

2. M(이동)을 눌러주고
3. Ctrl키를 한번 눌러 줍니다.(복사할 준비)
4. 바닥면을 클릭한 후 적당한 곳에 복사를 해줍니다. 오른쪽으로 해줍시다.

5. 복사한 바닥면이 선택된 상태에서 마우스 우클릭하여
6. 쿼드에서 그룹 만들기를 해서 그룹으로 만들어 줍니다.
(그룹을 만들면 해체하기 전까지는 다른 물체와 합쳐지지 않습니다.)

7. 다시 원본 부분으로 화면을 이동하여 바닥 부분을 다시 모두 선택해 줍니다.

8. 선택된 바닥 부분을 Delete로 지워줍니다.

9. 이제 벽에 입체를 주기 위해서 높이를 알아야 합니다.
높이는 입면도를 이용하면 빨리 작업할 수 있기 때문에 입면도 태그를 켜줍니다.

10. 지금부터는 1층 벽체에 해당하는 면을 입면도를 이용하여 높이를 지정해 줄 것입니다.
그러기 위해서 휠 마우스 버튼을 누르면서 화면을 돌려줍니다.(Orbit)

11. P(Push/Pull 면 입체 올리고 내리기)를 눌러주고
12. 벽체 윗면을 클릭하고 위로 끌어올리고 높이를 결정하기 위해
13. 입면도(좌측면도) 1층 층고선 부분에 마우스를 클릭합니다.(높이가 3,650mm가 될 겁니다.
치수를 알고 있다면 치수를 키보드로 입력해도 됩니다.)

이제 벽체의 일부의 높이를 수정할 것입니다.
14. 태그에서 "1층_평면도"를 켜줍니다.
15. 장면 트레이에서 표준보기에 평면도(맨 위)를 선택합니다.
16. 카메라에서 별령투영을 선택하여 투시를 없애줍니다.
17. 벽체흰면에 겹쳐진 부분에는 도면이 숨겨져 보일 것입니다.
단축키"K"(은선 보여주기:Back Edges)를 클릭하면 숨겨진 부분이 은석으로 표시될 것입니다.

수정할 구간은 A, B구간입니다. 여기는 폴딩 도어가 설치되는 구간으로 벽체가 구분이 되어야 할 부분입니다.
휠 마우스 휠과 Shit를 추가로 눌러서 화면을 확대, 이동하셔서 작업하셔야 할 것입니다.

18. L(선)을 눌러주고
19. A구간을 확대하고 출입구 경계 부분에 선을 그려줍니다.
만약 선이 그려지지 않을 수도 있습니다.(아래 도면에 스냅이 걸려서 도면에 선이 그려질 수 있습니다.
그런 때는 K를 클릭해서 은선보기를 꺼주시면 그려질 겁니다.)

20. B구간도 폴딩도어 경계 부분에 선을 그어줍니다.

21. 휠 마우스 버튼을 눌러서 화면을 아래 그림처럼 조정한 후
22. P(Push / Pull)을 눌러줍니다.
23. 분리된 면의 윗 면을 클릭하고 아래 바닥까지 드래그하여 내려줍니다.(거리가 3,650mm)

24. 태그 트레이에서 "1층_평면도" 태그를 숨겨줍니다.

25. Space Bar를 눌러주고
26. 수정한 면(폴딩도어 수평프레임 마감벽체가 될 부분)과 선을 드래그로 선택합니다.
27. 아랫부분도 Shift를 누른 채 나머지 면과 선을 선택해 줍니다.

28. 선택한 면을 마우스 우클릭 후 그룹 만들기를 해줍니다.(차후에 폴딩도어 상부 슬라벽 마감 벽으로 사용할 것입니다.)

29. 이제 1층 외벽체에 해당하는 벽체를 트리플 클릭(세 번 연속 클릭) 선택한 후에 마우스 우클릭을 하여 그룹 만들기를 해줍니다.

30. 방금 그룹 시킨 물체 두 개(폴딩도어 바닥과 1층 외벽체 부분)를 드래그 선택하여 동시에 선택해 줍니다.
31. 마우스 우클릭 후 개체 정보 항목을 선택합니다.
32. 개체 정보 트레이에서 태그 항목을 "1층_외벽" 태그를 선택하여 태그를 정리합니다.

수고 많았습니다.
여기까지가 1층 기본벽체를 세우는 과정이었습니다.

처음 하는 과정이라 조금은 어려웠을 겁니다.
포기하지 말고
다음 챕터에서도 열심히 해봅시다.
2024.08.20-감성카페, 스케치업으로 디자인하기 04(1층 벽체 재질넣기)
감성카페, 스케치업으로 디자인하기 04(1층 벽체 재질넣기)
목차이번 챕터에서는 벽체에 창문과 문들 설치하는 과정을 배울 것입니다그러기 위해서는 벽체에 창문크기만큼 구멍을 뚫어야 합니다. PC버전 스케치업에서는 Solid Tool(Boolean)을 이용하여 뚫는
1.jisigcamp.com
'3d강좌 > 스케치업SketchUp' 카테고리의 다른 글
| 감성카페, 스케치업으로 디자인하기 06(1층 글라스 월 만들기) (0) | 2024.08.21 |
|---|---|
| 감성카페, 스케치업으로 디자인하기 05(1층 창문만들기) (0) | 2024.08.20 |
| 감성카페, 스케치업으로 디자인하기 04(1층 벽체 재질넣기) (0) | 2024.08.20 |
| 감성카페, 스케치업으로 디자인하기 02(도면 배치하기) (0) | 2024.08.16 |
| 감성카페, 스케치업으로 디자인하기 01(도면불러오기) (0) | 2024.08.16 |